Sold

Displaying: of 6

Agent Details

Arthur Dislakis

Share

Brand New & ready!

Sold for $515,000

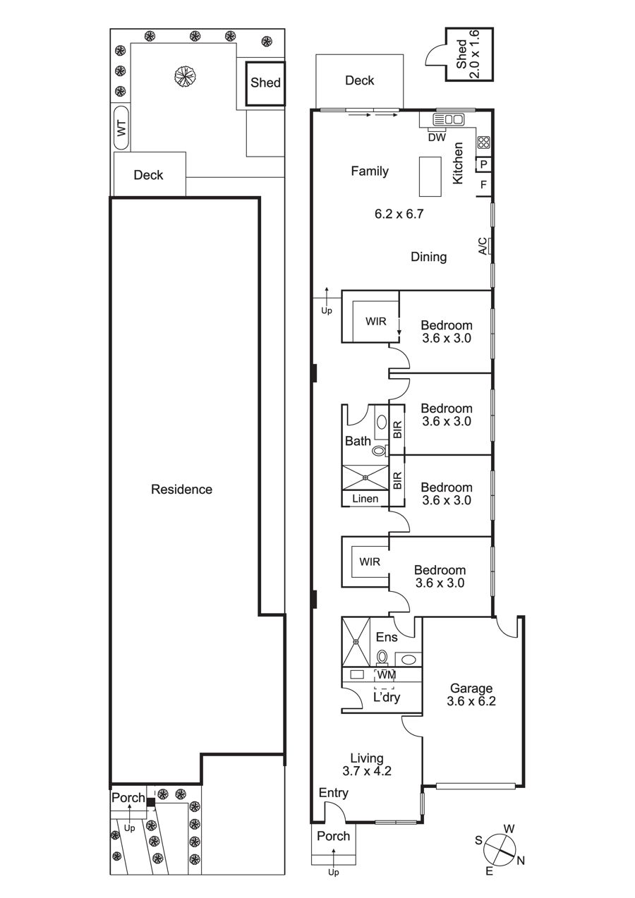
85 Kerrabee Drive, Mernda

4
2
1

Profile

A newly built fantastic east facing property tucked away in one of the premier pockets of the Mernda Villages Estate. This modern and low maintenance home boats all the local conveniences including the Mernda Railway Station, bus stops, Mernda Junction Shopping Centre, as well as a variety of both primary and secondary schools to choose from. Offering:

- 4 Bedrooms (2x WIR)
- 2 Bathrooms
- 2 Spacious living areas
- Great size laundry
- 600mm gas oven, stove cooktop
- Timber laminate flooring
- Dishwasher
- Stone benchtops
- Ducted heating
- Split system cooling
- Single lock up garage
- Low maintenance backyard including deck area
- Recycled water tank
- Clothesline
- Shed
- Backing on to breathtaking views

***PHOTO ID REQUIRED AT PRIVATE APPOINTMENTS***
Como Real Estate COVID-19 Update
- Our properties for sale will only be able to be viewed through private appointments.
- If you wish to book an appointment, please contact us directly to secure a time for you.
- Gloves, facial masks and hand sanitiser will be provide upon request.

Features

20510300
Property ID
4
Bedrooms
2
Bathrooms
1
Garage
Built In Robes
Dishwasher
Ducted Heating
Floorboards
Fully Fenced
Gas
Hot Water Service
New Construction
Remote Garage
Secure Parking
Shed
Split System

Send Enquiry

Your Details
Your Enquiry
  1. Please describe how we can be of assistance to you.

  2.  

    Would you like to join our mail list?

Submit