Displaying: of 11

Inspect

Sat 25 Oct
12:00pm - 12:30pm
Add To Calendar

Agent Details

Arthur Dislakis

Share

Modern Comfort & Lifestyle in Melbourne's Prestige Pocket

ESR: $880,000 to $968,000

23 Vickery Street, Malvern East

2
1
1

Inspect

Sat 25 Oct
12:00pm - 12:30pm
Add To Calendar

Profile

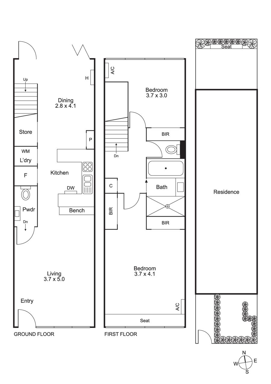
Nestled in one of Melbourne's most coveted and affluent suburbs, this freshly painted townhouse combines style, convenience, and lifestyle appeal in equal measure.

Behind its inviting facade, a well-considered floor plan unfolds to reveal:

Two generous bedrooms, including a sunlit master with his-and-hers built-in robes and ample storage.

A sleek, contemporary bathroom with quality finishes adding a sophisticated edge.

Two separate living zones, offering versatility for entertaining, relaxing, or working from home.

A north-facing courtyard framed by large glass bifold doors-perfect for year-round indoor-outdoor living.

Unbeatable Lifestyle Location
Set on a quiet, leafy street, this home enjoys an enviable position moments from:

Chadstone Shopping Centre-Australia's fashion capital with premier retail, dining, and entertainment.

Caulfield Park-ideal for weekend strolls, fitness, or family picnics.

Monash University (Caulfield Campus)-adding student or rental appeal.

Glenferrie Road's lively cafes and boutiques, Cabrini Hospital, and excellent public transport, with a nearby tram for seamless city access. a short stroll to Central Park Reserve nearby.

Extra Highlights: Secure carport parking, a second powder room, and an address promising exceptional lifestyle enjoyment and future capital growth.

Perfect for first-home buyers eager to enter a blue-chip market, savvy investors seeking strong rental demand, or young downsizers wanting low-maintenance living without compromise-this is an opportunity not to be missed.

Features

21488690
Property ID
2
Bedrooms
1
Bathrooms
1
Garage
Air Conditioning
Alarm System
Built In Robes
Courtyard
Dishwasher
Floorboards
Fully Fenced
Outdoor Ent
Split System

Send Enquiry

Your Details
Your Enquiry
  1. Please describe how we can be of assistance to you.

  2.  

    Would you like to join our mail list?

Submit